Instant Online Valuations
How much is my home worth? Find out nowBrynderwen Villas, Aberdare Road, Mountain Ash
Property Summary
Full Details
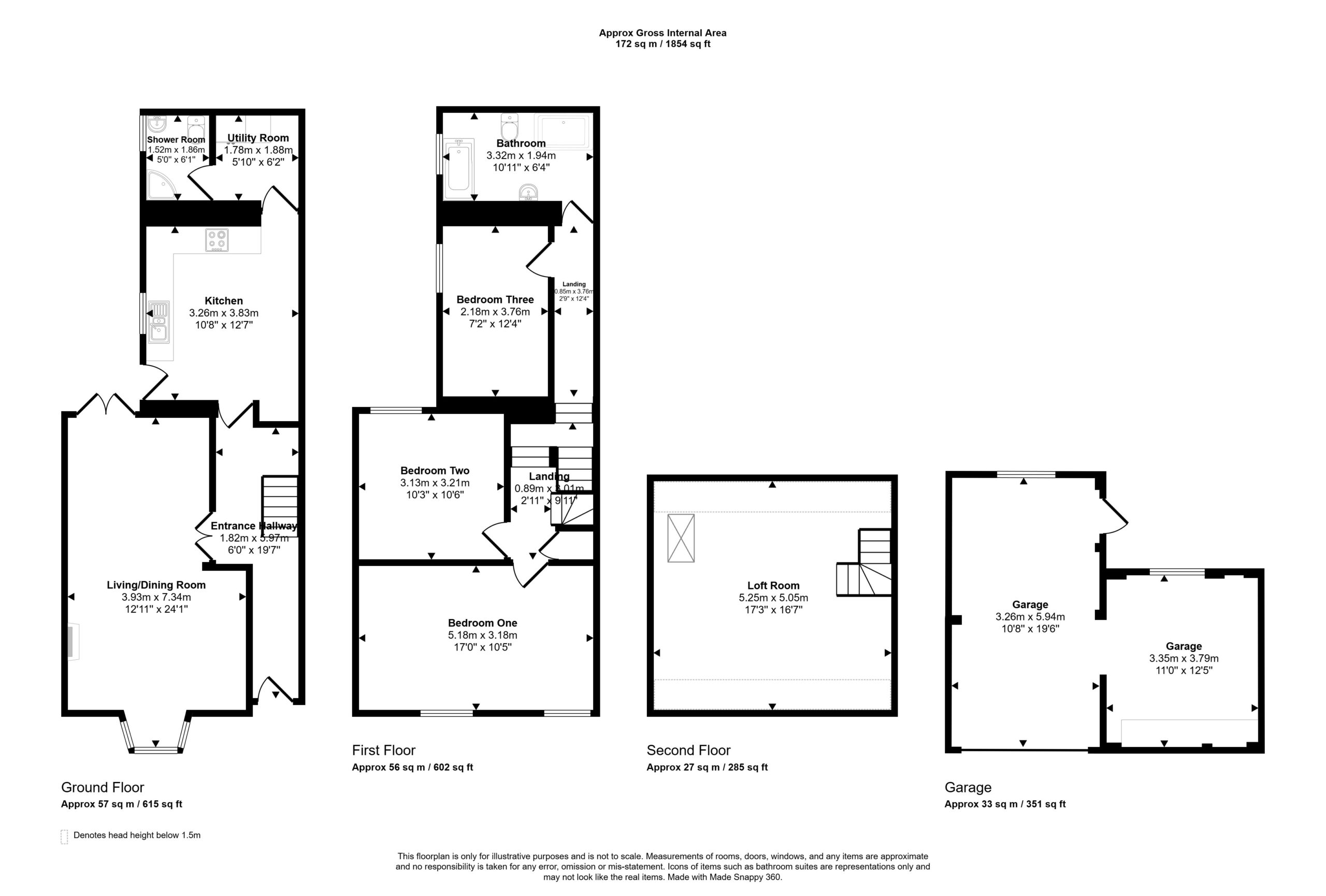
James Douglas is thrilled to bring this extended three-double-bedroom, semi-detached property, which includes a loft room, to the market. Set in the sought-after location of Aberdare Road, Mountain Ash. The perfect property for buyers seeking a large, modern, characterful family home. In brief, the accommodation comprises an entrance hallway, living/dining room (with log-burner), modern kitchen, utility room and shower room all on the ground floor. On the first floor, there are three double bedrooms and a beautiful four-piece family bathroom. On the second floor, there is a large loft room space, currently used as a bedroom. Gas central heating (Baxi combi boiler) and UPVC double-glazed windows and doors throughout (composite front door). On-road parking is available at the front and side. Gated access to the front garden space is complemented by patio slabs, real grass, trees and shrubbery. Side access. South-facing, three tier rear garden space complemented by patio slabs, real grass, decking, trees and shrubbery. Access to the detached garage is at the rear. Fantastic panoramic views. EPC D potential B. Council tax band B.
**THREE GOOD SIZED DOUBLE BEDROOMS & LOFT ROOM**
**HIGHLY SOUGHT-AFTER LOCATION**
**BEAUTIFULLY MAINTAINED SOUTH-FACING REAR GARDEN SPACE**
UNIQUE and RARE OPPORTUNITY TO PURCHASE THIS EXTENDED THREE-DOUBLE BEDROOM WITH LOFT ROOM SEMI-DETACHED PROPERTY - LOCATED IN THE TOWN OF MOUNTAIN ASH. PROPERTIES LIKE THIS ONE ARE RARELY AVAILABLE, SO AN EARLY VIEWING IS THOROUGHLY RECOMMENDED.
**DETACHED GARAGE TO THE REAR WITH ANNEX CONVERSION POTENTIAL**
**FANTASTIC PANORAMIC MOUNTAIN VIEWS**
**MODERN & IMMACULATE THROUGHOUT**
Brynderwen Villas, Aberdare Road is within relative walking distance of Mountain Ash town centre and a few minutes' drive from it. The town centre offers a wide range of shops and sporting and recreational facilities.The local primary schools are Darrenlas Primary School & Glenboi Primary School with the local high school being Mountain Ash Comprehensive School. A useful mainline railway station is located in Mountain Ash town centre. Easy access to the A470/M4 motorway brings other major centres including the capital city of Cardiff, Newport and Swansea within commuting distance.
Additional Information
------------------------------------
Tenure: Freehold
EPC: D
Council Tax Band: B





























































