Instant Online Valuations
How much is my home worth? Find out nowWood Road, Treforest, Pontypridd
Property Summary
Full Details
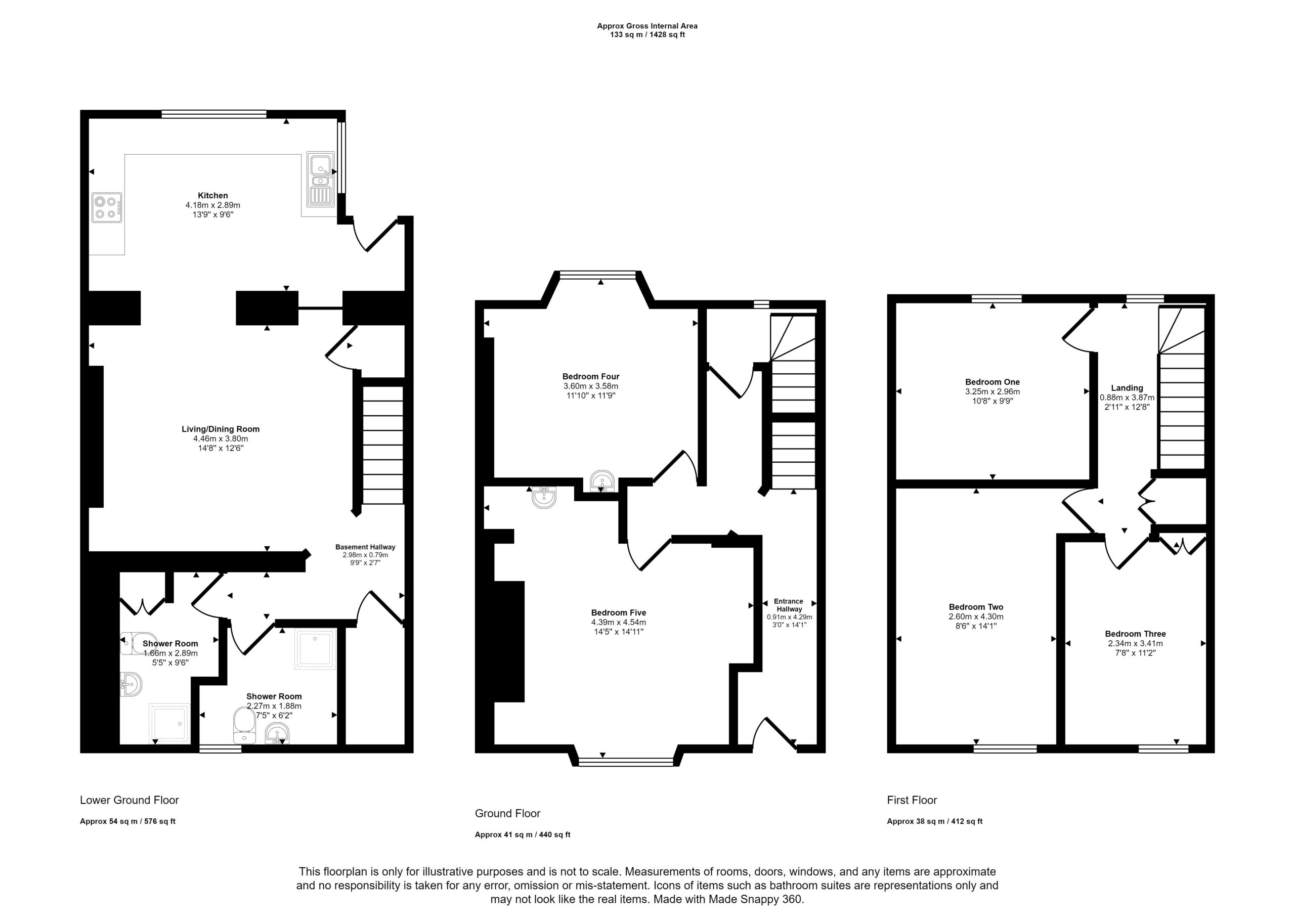
James Douglas is delighted to welcome this five bedroom HMO terrace property to the market. Set in the ever popular location of Wood Road, Treforest. The perfect investment for any prospective landlord. In brief terms the accommodation comprises an entrance hallway, bedroom four and bedroom five on the ground floor. Upstairs there are three double bedrooms. Basement level, there is a hallway, shower room one, shower room two, living/dining room and kitchen. Mains gas fired central heating and UPVC double glazed windows throughout. A decent sized plot with three tier north-east facing garden space. EPC C potential B. Council tax band C.
**3D VIDEO TOUR AVAILABLE**
**LICENCED HMO - WILL BE SOLD WITH TENANTS IN SITU - LICENCE VALID UNTIL 25/10/2026**
**RENTAL INCOME OF £1565PCM NOT INCLUDING BILLS - 10% YIELD**
**NO ONWARD CHAIN**
Wood Road is within walking distance of Treforest town centre and a few minutes drive from Pontypridd town centre which includes a wide range of shops and sporting and recreational facilities. The local primary schools are Parclewis Primary School & St Michael's R.C. Primary School with the local high school being Cardinal Newman R.C. Comprehensive School. Wood Road is within walking distance of the University of South Wales. There are useful mainline railway stations in Treforest and Pontypridd town centre. Easy access to the M4 motorway brings other major centres including the capital city of Cardiff, Newport and Swansea within commuting distance.
Additional Information
------------------------------------
Tenure: Freehold
EPC: C
Council Tax Band: C

























































