Instant Online Valuations
How much is my home worth? Find out nowRuskin Avenue, Rogerstone, Newport
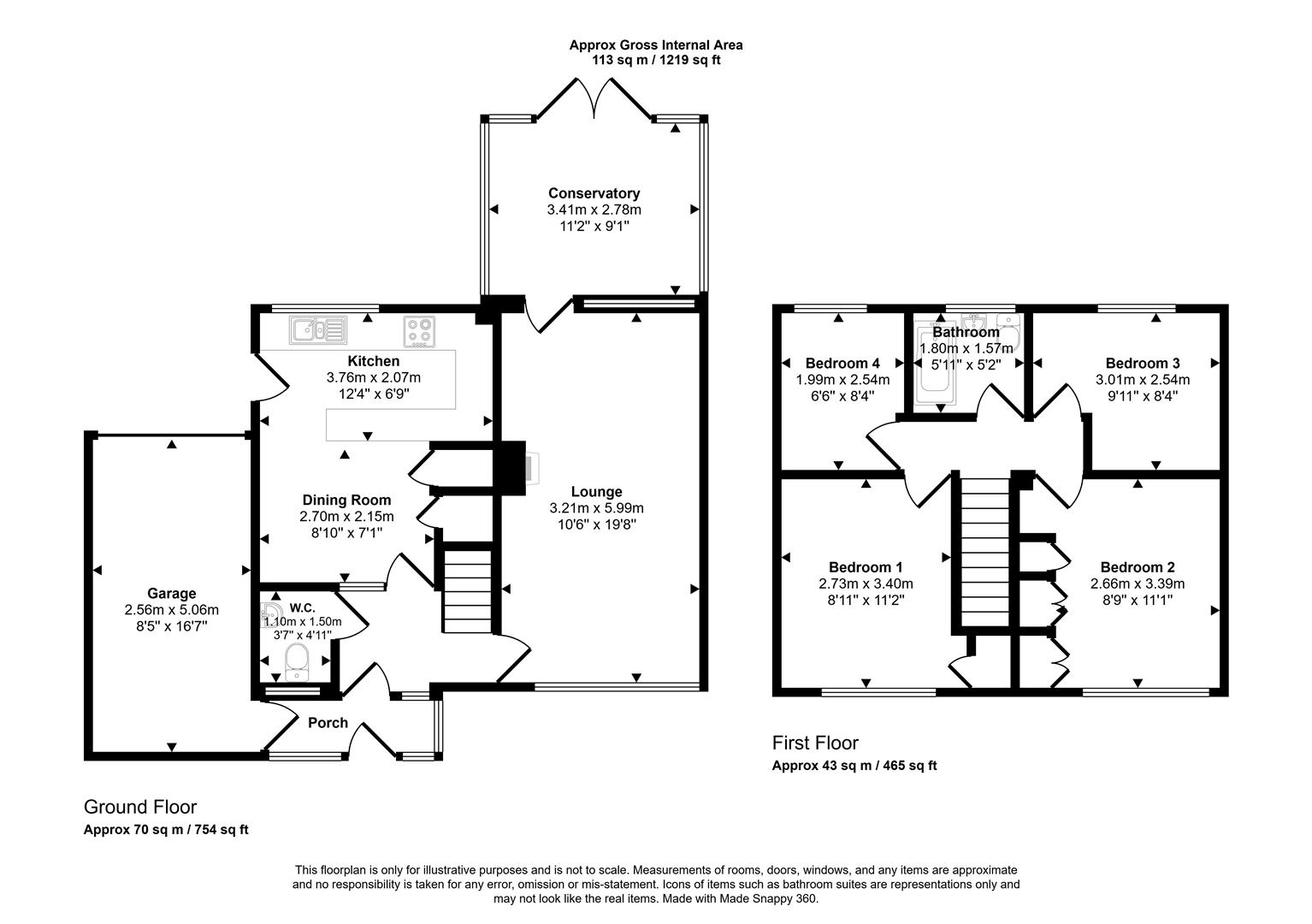
Property Features
- No onward chain
- Conservatory
- Lovely detached family home
- Remodelled rear garden
- Four bedrooms
- Driveway and garage
- Open plan kitchen/diner
- Large corner plot
- Good sized lounge
- Excellent school catchments, amenities and road links
Property Summary
*No onward chain *Lovely detached family home *Four bedrooms *Open plan kitchen/diner *Good sized lounge *Conservatory *Remodelled rear garden *Driveway and garage *Large corner plot *Excellent school catchments, amenities and road links
Full Details
Ruskin Avenue, Newport, NP10 0AA
Introduction
A fantastic opportunity to purchase this lovely detached family home occupying this larger than average corner plot, situated within the highly regarded Mount Pleasant estate in Rogerstone, offering generous room proportions and benefitting from no onward chain. There are excellent amenities close by, including local shops, beautiful canal walks and bus stops as well as well respected primary and secondary schools (Mount Pleasant Primary and Bassaleg Secondary). The M4 motorway is also just around the corner, providing an easy commute to neighbouring towns and cities.
The property has been lovingly owned by the same family since the late 1960s and has been very well cared for and improved in areas, although some modernisation may be required to suit the taste of the buyer.
On entering the property, we are welcomed into the porch (with pedestrian door into the garage), then into the main hallway with doors off to a WC, an open plan kitchen/diner, full-length lounge and conservatory. Upstairs, there are four bedrooms and the main family bathroom.
Outside, the property offers excellent and larger than average space. The front garden has a pathway leading to the front door and the side, although not fenced off, forms part of this property giving excellent potential to make it more useable. The attractive rear garden has been remodelled with artificial grass and large flagstones, plus a block-paved driveway leading to the garage which features power and lighting as well as a modern up-and-over door.
Viewing really is essential to appreciate what this lovely home has to offer, and the potential it has to transform it into your forever home!
Tenure
Freehold
Council tax
Band E
Boundaries
All boundaries should be confirmed by your solicitor prior to purchase
Viewing
By prior appointment with vendors agents James Douglas. Tel: 01633 212666.
These particulars do not constitute an offer or contract of sale. Whilst every care is taken in the preparation of these particulars, their accuracy cannot be guaranteed and prospective purchasers should satisfy by inspection or otherwise as to the correctness of any statements or information contained therein.









































