Instant Online Valuations
How much is my home worth? Find out nowClas Ty Gelli, Coed Y Cwm, Pontypridd
Property Summary
Full Details
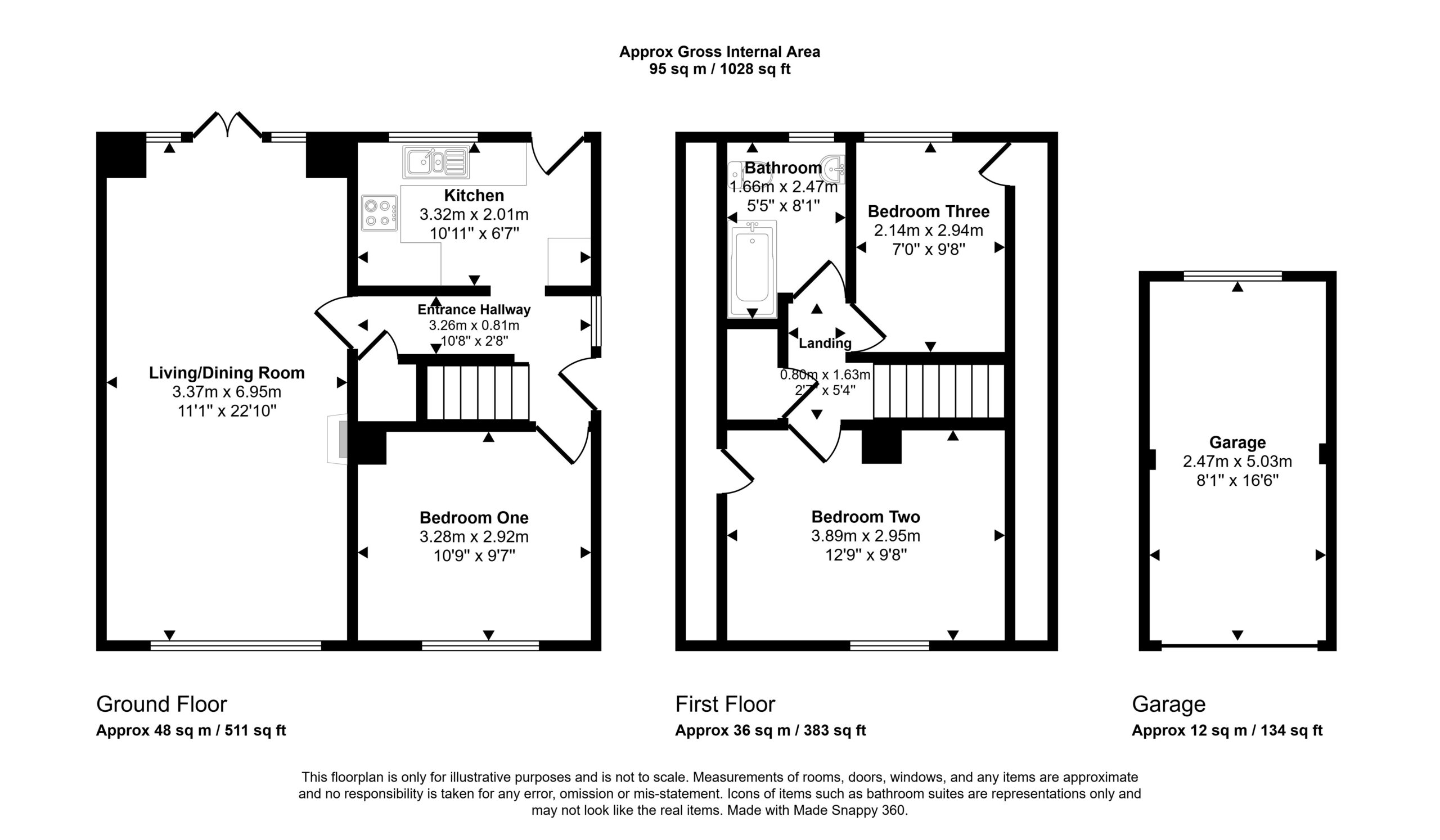
James Douglas is delighted to welcome this charming three bedroom detached dormer bungalow style property to the market. Being sold with no onward chain. Set in the ever popular area of Coed-Y-Cwm, Pontypridd. The perfect first-time-buy, downsizing opportunity or for someone looking for that perfect family home. In brief terms the accommodation comprises an entrance hallway, bedroom one, kitchen and living/dining room all on the ground floor. Upstairs there are two further bedrooms and a separate family bathroom. Mains gas fired central heating (Ideal combi boiler) and UPVC double glazed windows and doors throughout. Off-road driveway parking for two vehicles and a detached garage. The front garden is complemented by chippings, trees and shrubbery. Side access. South-west facing level rear garden space complemented by chippings, trees and shrubbery. EPC D potential B. Council tax band C.
**NO ONWARD CHAIN**
**SOUTH-WEST FACING GARDEN**
**OFF-ROAD PARKING & DETACHED GARAGE**
**POTENTIAL TO EXTEND (STP)**
Clas Ty-Gelli, Coed-Y-Cwm is within a seven minute drive of Pontypridd town centre which includes a wide range of shops and sporting and recreational facilities. The local primary schools are Craig-Yr-Hesg Primary & Cefn Primary School with the local comprehensive being Pontypridd High School. There is also a useful mainline railway in Pontypridd town centre. Easy access to the A470/M4 motorway brings other major centres including the capital city of Cardiff, Newport and Swansea within commuting distance. Viewings are thoroughly recommended.
Additional Information
------------------------------------
Tenure: Leasehold (939 years remaining - £15 per annum ground rent)
EPC: D
Council Tax Band: C











































