Instant Online Valuations
How much is my home worth? Find out nowWaterford House, Bayscape
Property Summary
A fantastic opportunity to acquire a stylish fourth-floor apartment offering a ...
Full Details
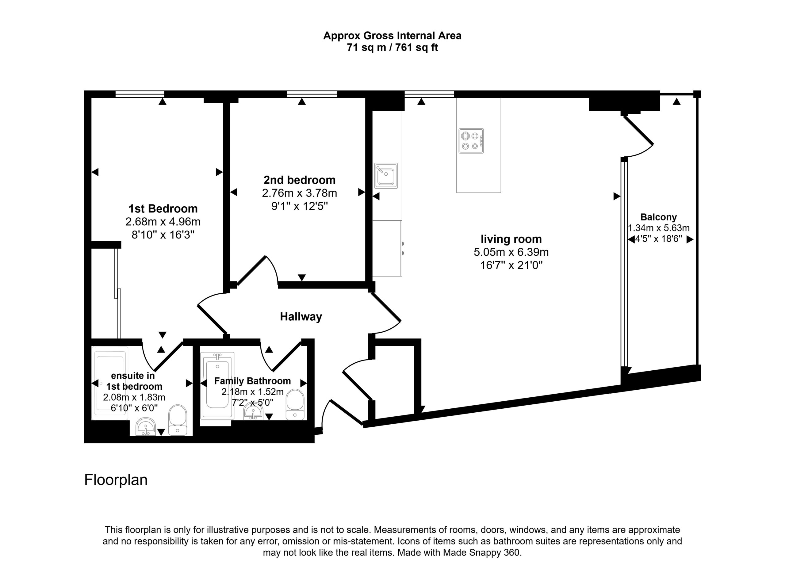
Modern 2-bedroom, two bathroom apartment in Waterford House, Bayscape – featuring open-plan living, balcony, en-suite, and allocated parking. A stylish home and excellent investment in a prime Cardiff Bay location!!
A fantastic opportunity to acquire a stylish fourth-floor apartment offering a sleek modern finish and an impressive open-plan kitchen, dining and living area, perfectly designed for contemporary living. This bright and social space is enhanced by floor-to-ceiling windows opening onto a private balcony, providing an ideal place to relax while enjoying views across the marina and city skyline. The fitted kitchen is well appointed with integrated appliances and ample storage, complementing the apartment’s clean, modern aesthetic.
The accommodation comprises two generous double bedrooms, including a well-proportioned principal bedroom with built-in wardrobes and a luxury en-suite shower room, alongside a further modern family bathroom. Additional benefits include underfloor gas heating with individual room controls, lift access, allocated secure underground parking, bicycle storage and a dedicated onsite concierge service.
Situated within easy reach of local amenities, popular cafés and Cogan Train Station (Penarth), the property also enjoys close proximity to Cardiff Bay attractions such as Cardiff International Pool and Cardiff International White Water, making this an exceptional lifestyle opportunity.
This amazing apartment is being offered to market with no onward chain and being sold vacant. What are you waiting for, Book a viewing with us Today!!
**An EWS1 form is in place**
Additional Information
----------------------------------------
Tenure: Leasehold
Service Charge- Approx £2000.00 p/a (advised by vendor)
Ground Rent - £250.00 p/a
Potential Rent- £1600 p/m
242 Years Remaining on Lease
Council Tax Band: F
EPC Rating: B

































