Instant Online Valuations
How much is my home worth? Find out nowRickards Street, Graig, Pontypridd
Property Summary
Full Details
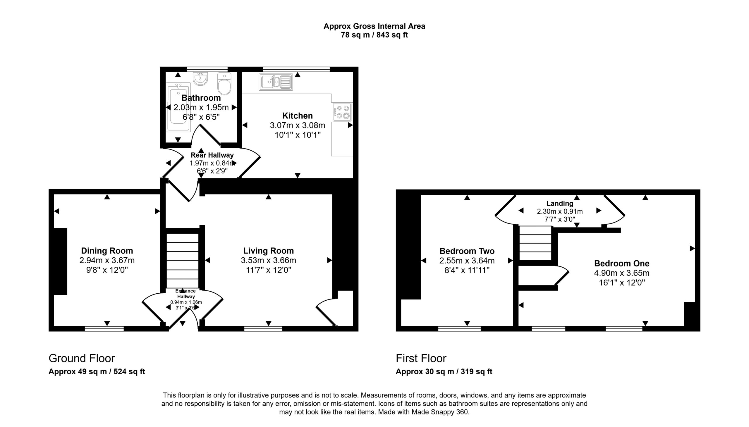
James Douglas is delighted to welcome this two bedroom (former three bedroom HMO) end of terrace property to the market. Set in the popular location of Rickards Street, Graig. The perfect property for any first-time-buyer or investor looking for an investment/renovation opportunity. In brief terms the accommodation comprises an entrance hallway, living room, dining room, kitchen and bathroom on the ground floor. Upstairs there are two good sized double bedrooms. Mains gas fired central heating (Worcester combi boiler) and UPVC double glazed windows and doors throughout. On-street parking to the front. The front garden is complemented by patio slabs. South-facing rear garden space complemented by a concrete base and shrubbery. Handy outbuilding storage. EPC D potential B. Council tax band B.
**NO ONWARD CHAIN**
**3D WALK THROUGH AVAILABLE**
**FORMER THREE BEDROOM HMO**
**RENOVATION OPPORTUNITY**
Rickards Street is within walking distance of Pontypridd & Treforest town centres and a few minutes drive from Pontypridd town centre which includes a wide range of shops and sporting and recreational facilities. The local primary schools are Parclewis Primary School & St Michael's R.C. Primary School with the local high school being Cardinal Newman R.C. Comprehensive School. Most importantly for any prospective landlord, Rickards Street is within walking distance of the University of South Wales. There are useful mainline railway stations in Treforest and Pontypridd town centre. Easy access to the M4 motorway brings other major centres including the capital city of Cardiff, Newport and Swansea within commuting distance.
Additional Information
------------------------------------
Tenure: Freehold
EPC: D
Council Tax Band: B









































